Проект деревянного дома с мансардой 8х8

Изображение 13_1
Изображение 13_2
Изображение 13_3
Изображение 13_4

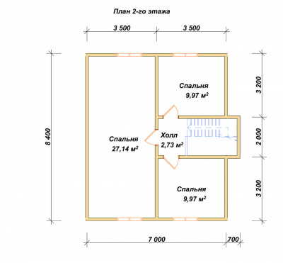
Проект "Тула"


S общая:
132 м2
Размер:
8,4х8,4
Этажность:
Мансардный

Выбор бруса:

Выбор фундамента:


Выбор кровли:

Дополнительные услуги:

  • 48 000 Р
  • 45 000 ₽
  • Бесплатно
  • ГОСТ
    Весь используемый при строительстве материал хвойных пород 1 сорта (ГОСТ 8486-86)
  • Высота потолка 1 этажа
    2.7 м (между балками пола и потолка)
  • Высота потолка мансардного этажа
    2.5 м (от балки пола до потолочного ригеля)
  • Обвязка фундамента
    обрезной брус 150х150 мм или 150х200 мм , в зависимости от толщины наружных стен.
  • Гидроизоляция фундамента
    гидроизол "Технониколь"
  • Внешние стены
    в зависимости от выбора: брус обрезной 150х150 мм, брус профилированный 145х145 мм или 145(h)х195 мм
  • Внутренние перегородки
    брус обрезной 150(h)х100 мм или брус профилированный 145(h)х95 мм (для профилированного бруса)
  • Балки пола,потолка
    брус 150х100 мм, шаг 0.59 м
  • Стропильная система
    доска обрезная 150х50 мм (стропила,стойки, ригеля)
  • Обрешетка крыши
    доска обрезная 22х150 мм
  • Фронтоны
    каркас, обшит сухой имитацией бруса
  • Кровля
    рубероид (в базовой комплектации) либо другой тип кровли на выбор.
  • Погрузка/разгрузка
    погрузка, разгрузка материала и комплектующих на участке заказчика
  • Межвенцовый утеплитель
    Шелтер, толщиной 15 мм
  • Обработка антисептиком
    обвязочный венец, балки пола
  • Доставка
    доставка материала и комплектующих на место строительства
  • Сборка
    сборка дома под усадку по технологии "теплый угол", крепление венцов деревянными нагелями.
  • Необходимые расходные материалы
    нагеля, межвенцовый утеплитель джут ,антисептик, гсм, усадочные домкраты и т.д.
  • Проект
    предоставляем проект с сайта или индивидуальный проект эскизный проект
  • Дополнительно
    возможна перепланировка проекта, замена сечения материала
Брус
бытовка
Сваи
Проект 1
#162
Строительство одноэтажного дома 8х9 м под уса...
8х9
Одноэтажный
Подробнее
Проект 1
#161
Отделочные работы в доме из бруса в Истринско...
9.5х9.6 м
Двухэтажный
Подробнее
Проект 1
#160
Строительство одноэтажной бани 4х6 м под усад...
4х6
Одноэтажный
Подробнее
Проект 1
#159
Строительство двухэтажного дома из бруса в Ис...
9.5х9.6 м
Двухэтажный
Подробнее
Проект 1
#158
Строительство 1.5 этажного дома 9х12 м из бру...
9х12
Полутораэтажный
Подробнее
Проект 1
#157
Строительство одноэтажной бани 6х7 м под усад...
6х7
Одноэтажный
Подробнее
Проект 1
#156
Отделка дома из бруса в МО, Воскресенский рай...
11..5х12
Одноэтажный
Подробнее
Проект 1
#155
Строительство двухэтажного дома 9.5х9.5 м под...
9.5х9х.5
Двухэтажный
Подробнее
Проект 1
#154
Строительство одноэтажного дома 6х8 м с манса...
6х8
Мансарда
Подробнее
Проект 1
#153
Строительство двухэтажного дома 6х8 м под уса...
6х8
Двухэтажный
Подробнее
Строительство одноэтажной бани 4х6 м под усадку в Краснопахорском районе МО.
Строительство одноэтажной бани 4х6 м под усад...
Смотреть фото
Строительство двухэтажного дома 6х8 м под усадку из бруса в  СНТ Восход, Богородский городской округ, Московская область
Строительство двухэтажного дома 6х8 м под уса...
Смотреть фото
Строительство одноэтажного дома 16х18 м в Чеховском районе Московской области
Строительство одноэтажного дома 16х18 м в Чех...
Смотреть фото
Строительство 1.5 этажного дома 7х8.5 м "под усадку" в д. Леоново, Петушинский р-н, Владимирская область.
Строительство 1.5 этажного дома 7х8.5 м "под ...
Смотреть фото
Строительство одноэтажного дома 8х9 м из профилированного бруса в  КП Степыгино, Домодедовский р-н, Московская область.
Строительство одноэтажного дома 8х9 м из проф...
Смотреть фото
Строительство двухэтажного дома 6.3х11.5 м из бруса под усадку в д. Лужки, Истринский р-н, Московская область
Строительство двухэтажного дома 6.3х11.5 м из...
Смотреть фото
Двухэтажный дом 8.75х8.75 м под усадку  из профилированного бруса в д.Захарово, Одинцовский р-н, Московская область
Двухэтажный дом 8.75х8.75 м под усадку из пр...
Смотреть фото
Дом двухэтажный 9х12 м под усадку из обрезного бруса в д. Тверитино Серпуховской р-н, МО.
Дом двухэтажный 9х12 м под усадку из обрезног...
Смотреть фото
Этот проект дома может быть построен «под ключ» по каркасной технологии.
Стоимость строительства и комплектацию уточняйте по телефону +7 (915) 915 17 71 (Дмитрий)

Хотите рассчитать свой проект?

Мы совершенно бесплатно по вашим чертежам и эскизам, в соответствии со всеми пожеланиями рассчитаем ваш проект, и реализуем его в кратчайшие сроки

Рассчитать свой проект

Cookie файлы

На нашем сайте используются cookie–файлы, в том числе сервисов веб–аналитики. Используя сайт, вы соглашаетесь на обработку персональных данных при помощи cookie–файлов. Подробнее об обработке персональных данных вы можете узнать в Политике конфиденциальности.