Проект двухэтажного дома из бруса 10х14 м

Изображение 127_1
Изображение 127_2
Изображение 127_3
Изображение 127_4

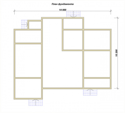
Проект "Солигалич"


S общая:
200 м2
Размер:
10.2х14
Этажность:
Двухэтажный

Выбор бруса:

Выбор фундамента:


Выбор кровли:

Дополнительные услуги:

  • 88 000 Р
  • 45 000 ₽
  • Бесплатно
  • ГОСТ
    Весь используемый при строительстве материал хвойных пород 1 сорта ГОСТ 8486-86
  • Высота потолка первого этажа
    2.7 м
  • Высота потолка второго этажа
    2.7 м
  • Гидроизоляция фундамента
    гидроизол "Технониколь"
  • Обвязка фундамента
    обрезной брус 150х150 мм или 150х200 мм, в зависимости от толщины наружных стен
  • Внешние стены
    в зависимости от выбора: брус обрезной 150х150 мм, брус профилированный 145х145 мм или 145(h)х195 мм
  • Внутренние перегородки
    брус обрезной 150(h)х100 мм или брус профилированный 145(h)х95 мм (для профилированного бруса)
  • Балки пола, потолка
    брус 150(h)х100 мм, шаг 0.59 м
  • Стропильная система
    доска обрезная 150х50 мм (стропила,стойки)
  • Обрешетка крыши
    доска обрезная 22х150 мм
  • Фронтоны (при наличии)
    каркас, обшит сухой имитацией бруса
  • Кровля
    рубероид (в базовой комплектации) либо другой тип кровли на выбор.
  • Межвенцовый утеплитель
    Шелтер , толщина 20 мм
  • Обработка антисептиком
    обвязочный венец, балки пола
  • Погрузка/разгрузка
    погрузка, разгрузка материала и комплектующих на участке заказчика.
  • Доставка
    доставка материала и комплектующих на место строительства
  • Сборка
    сборка дома под усадку по технологии «теплый угол», крепление венцов деревянными нагелями
  • Необходимые расходные материалы
    нагеля, межвенцовый утеплитель джут ,антисептик, гсм, усадочные домкраты и т.д.
  • Проект
    типовой или индивидуальный эскизный проект
  • Дополнительно
    возможна перепланировка проекта, замена сечения материала.
Брус
бытовка
Сваи
Проект 1
#161
Отделочные работы в доме из бруса в Истринско...
9.5х9.6 м
Двухэтажный
Подробнее
Проект 1
#160
Строительство одноэтажной бани 4х6 м под усад...
4х6
Одноэтажный
Подробнее
Проект 1
#159
Строительство двухэтажного дома из бруса в Ис...
9.5х9.6 м
Двухэтажный
Подробнее
Проект 1
#158
Строительство 1.5 этажного дома 9х12 м из бру...
9х12
Полутораэтажный
Подробнее
Проект 1
#157
Строительство одноэтажной бани 6х7 м под усад...
6х7
Одноэтажный
Подробнее
Проект 1
#156
Отделка дома из бруса в МО, Воскресенский рай...
11..5х12
Одноэтажный
Подробнее
Проект 1
#155
Строительство двухэтажного дома 9.5х9.5 м под...
9.5х9х.5
Двухэтажный
Подробнее
Проект 1
#154
Строительство одноэтажного дома 6х8 м с манса...
6х8
Мансарда
Подробнее
Проект 1
#153
Строительство двухэтажного дома 6х8 м под уса...
6х8
Двухэтажный
Подробнее
Проект 1
#152
Строительство 1.5 этажного дома из бруса в М...
9.15х10.5
Полутораэтажный
Подробнее
Строительство одноэтажной бани 4х6 м под усадку в Краснопахорском районе МО.
Строительство одноэтажной бани 4х6 м под усад...
Смотреть фото
Строительство двухэтажного дома 6х8 м под усадку из бруса в  СНТ Восход, Богородский городской округ, Московская область
Строительство двухэтажного дома 6х8 м под уса...
Смотреть фото
Строительство одноэтажного дома 16х18 м в Чеховском районе Московской области
Строительство одноэтажного дома 16х18 м в Чех...
Смотреть фото
Строительство 1.5 этажного дома 7х8.5 м "под усадку" в д. Леоново, Петушинский р-н, Владимирская область.
Строительство 1.5 этажного дома 7х8.5 м "под ...
Смотреть фото
Строительство одноэтажного дома 8х9 м из профилированного бруса в  КП Степыгино, Домодедовский р-н, Московская область.
Строительство одноэтажного дома 8х9 м из проф...
Смотреть фото
Строительство двухэтажного дома 6.3х11.5 м из бруса под усадку в д. Лужки, Истринский р-н, Московская область
Строительство двухэтажного дома 6.3х11.5 м из...
Смотреть фото
Двухэтажный дом 8.75х8.75 м под усадку  из профилированного бруса в д.Захарово, Одинцовский р-н, Московская область
Двухэтажный дом 8.75х8.75 м под усадку из пр...
Смотреть фото
Дом двухэтажный 9х12 м под усадку из обрезного бруса в д. Тверитино Серпуховской р-н, МО.
Дом двухэтажный 9х12 м под усадку из обрезног...
Смотреть фото
Этот проект дома может быть построен «под ключ» по каркасной технологии.
Стоимость строительства и комплектацию уточняйте по телефону +7 (915) 915 17 71 (Дмитрий)

Хотите рассчитать свой проект?

Мы совершенно бесплатно по вашим чертежам и эскизам, в соответствии со всеми пожеланиями рассчитаем ваш проект, и реализуем его в кратчайшие сроки

Рассчитать свой проект

Cookie файлы

На нашем сайте используются cookie–файлы, в том числе сервисов веб–аналитики. Используя сайт, вы соглашаетесь на обработку персональных данных при помощи cookie–файлов. Подробнее об обработке персональных данных вы можете узнать в Политике конфиденциальности.